杏彩体育,建筑结构丨中国院作品:这是一座属于母亲和孩子的博物馆

  新闻资讯     |      2024-07-18 10:11

  因为被规模庞大的中国妇女活动中心挡住,在大街上很难注意到它。但每当参观者进入其中,又总会被它吸引,称之为“ 城里少有的人少氛围好的免费博物馆 ”,杏彩体育登录入口它那变化多端的大楼梯,更成为近年来一处小有名气的“ 网红打卡地 ”。

  如果说有什么文化场所能同时适合妈妈与孩子,可能非它莫属,作为全国妇联所设的文化机构,它是我国首家以妇女和儿童为主题的博物馆。而 它的设计灵感,也是来源于母亲与孩子的依偎。

  毗邻长安街的重要位置,杏彩体育登录入口周边已有多个流线形的建筑,特殊的功能意义更成为业主关注的焦点。而当建筑师将母亲与孩子联系到一起,问题似乎迎刃而解了。

  建筑师提出用曲线形态来表现博物馆的整体形态,构思阶段在面向城市的南立面上勾勒出的两条曲线成为建筑形态的主线: 一条柔和的蜷缩起来,好似襁褓中的婴儿,另一条舒展的覆盖其上,则让人联想到母亲的呵护 。后者最终演化成为一个覆盖在整座建筑上的连续柔和的曲线钢肋结构构成的屋架系统,一直延续到建筑的西立面上成为建筑的外围护幕墙。

  用卷曲的楼板包裹起来的巨大的“万花筒”,内部正是两层高的儿童展厅,不论是从内部展厅还是室外的主入口前广场上,观众都能从“万花筒”中不断变化和旋转的图案中寻回儿时的乐趣。整个博物馆的外观形态,也就在这两笔看似随意却恰到好处的勾勒中完成了。

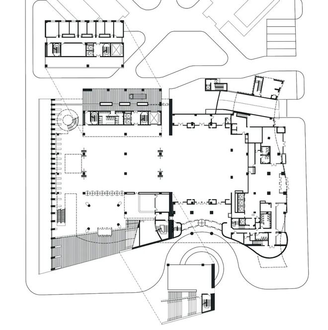
  主体结构地上六层,中心位置最大化地布置各层展厅,以保证展陈空间的完整和连续,满足多样化展陈设计的需要。

  首层的大厅和临时展厅,与东侧相邻的会议中心对位连通,做到两者空间能互相借用;二层与三层展厅为儿童博物馆;四至六层为妇女博物馆。

  贯穿所有功能的中庭空间杏彩体育,是连接各层展厅的交通枢纽。它有效的利用西侧充足的自然光线,同时消解直射光线对于中心展陈空间的不利影响。

  自动扶梯、楼梯与平台错落有致的布置,还有头顶上富于韵律的曲线钢肋结构,使得这个充满阳光的中庭空间里,充满着丰富的视觉体验,无形中消除掉观展者来往于各个展厅之间时的距离感。

  特别提示:目前,这所京城“小众大空间全免费博物馆”仍因疫情而暂时关闭,但根据我们的现场调查,5月20日左右,博物馆就将重新开放了,妈妈和宝宝同游的机会很快就能回来了。

  工程地点北京市东城区北极阁路9号 建筑面积12995m2 设计时间2006年 开馆时间2010年 建筑设计崔愷喻弢康凯关飞 室内设计张烨 盛燕 胡玉静 合作设计中国航空规划建设发展有限公司 建筑摄影张广源 因目前闭馆,使用状况下部分图片来自网络