杏彩体育,嘉兴紫城峰睿里官方发布!紫城峰睿里开盘在即~紫城官方百科详情

  新闻资讯     |      2024-07-20 09:54

  尽管后来也有陆续推出一些终改级别的大平层,但整体的密度和纯粹度始终无法满足人们对豪宅的渴望。

  外立面,更是城南首个四面全铝板,不止大平层,连别墅也是四面铝板。全盘都透着一种“无惧岁月,始终温润”的高级气质。

  还有豪宅景观御用设计院GTS出品的园林景观、三大抽屉式主题架空层、杏彩体育注册奢华有排面的双精装入户大堂、挑高达3.8米的地下车库……

  方方面面,都把豪宅的张力拉满,匹配嘉兴塔尖人群的圈层,让“峰睿里”三个字,成为身份与地位的象征。

  三楼是标准的总统式套房,卫生间有大浴缸和双台盆,卧室放得下king size的大床,衣帽间是单独而设且带窗的,书房是朝南的,外面还自带星空露台。

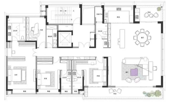
  一楼总面宽约13.6米,这个尺度下,排布了约8.4米的大横厅,约5.2米的朝南套房,U字型的厨房,三段式的楼梯,双直排的玄关…每一寸空间都极尽舒适。

  外部连接的是一个L型超尺度露台,长度超20米,好比一处往外部延伸的绝佳观景台。嘉兴【紫城峰睿里】

  一户独占一整层,私享电梯入户,把别墅的私密感和宽阔感搬进了高空,360°拥抱城市核心的瑰丽。

  南向约23.2米极幕面宽,除了有面积近80㎡的超大方厅,还有三个全套房设计的卧室,全屋尽享“酒店式体验”。

  比如厨房可以做成中西双厨,餐厅外接独立阳台,玄关后设独立储藏室,阳台面宽约9.4米杏彩体育,进深约1.7米……杏彩体育注册